RCC Slab Curtailment Bars And Foundation CAD Drawing
Description
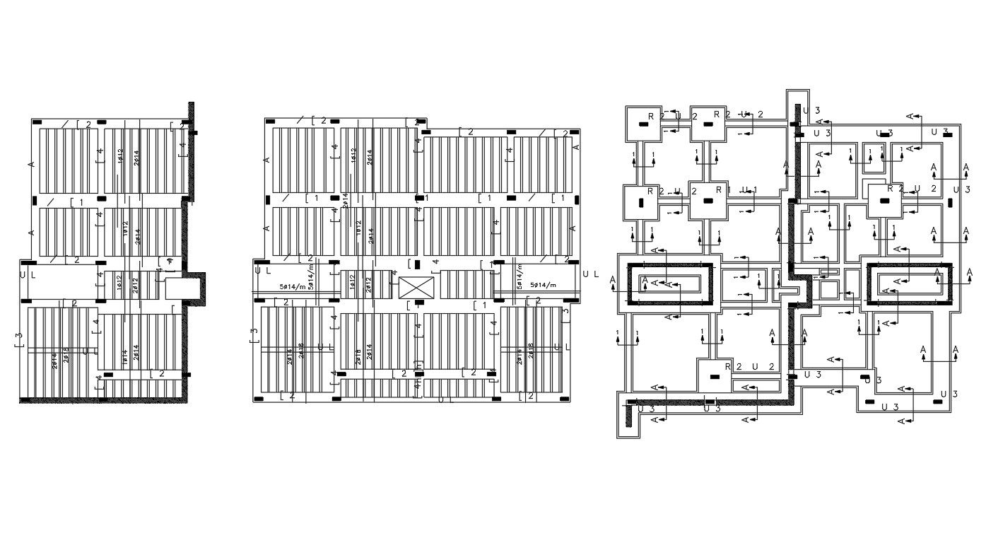
Download free DWG file of RCC slab curtailment bar structure design and foundation column layout plan excavation plan drawing. download RCC constructure structure drawing and learn begining construction house plan design.
Uploaded by:

